








Destine Imobiliare îți prezintă un nou proiect rezidențial în Lunca Cetățuii – case individuale parter (P), ideale pentru familii care își doresc liniște, spațiu și confort aproape de oraș.
✨ Caracteristici:
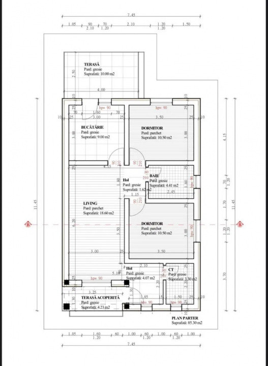
• Suprafață utilă: 76 mp (62 mp interior + 14 mp terase)
• Compartimentare:
• 2 dormitoare
• Living spațios
• Bucătărie cu ieșire pe terasă
• Baie complet utilată
• Hol
• Cameră tehnică
• Pod pentru depozitare, cu acces din casă
🔌 Utilități și finisaje:
• Casele se predau racordate la toate utilitățile: gaz, energie electrică, apă și canalizare
• Izolație exterioară: termosistem de 10 cm
• Izolație interioară (acoperiș): spumă poliuretanică
🏗 Termen de finalizare: primăvara anului 2026
💰 Comision 0% de la cumpărător
💸 Prețuri în funcție de modalitatea de plată:
• 115.000 € – plată integrală la semnarea antecontractului
• 120.000 € – plată 50% la antecontract, 50% la finalizare
• 125.000 € – achiziție prin orice tip de credit bancar
📞 Contactează echipa Destine Imobiliare 0728.803.555 pentru detalii, vizionări și oferte personalizate!
📍 Case parter – Lunca Cetățuii, confortul unei locuințe moderne într-un mediu liniștit și sigur.