






















*** DESTINE IMOBILIARE vă prezintă spre vânzare:
** Casă individuală 4 camere – BÂRNOVA
Preț: 109.000 €
INFORMAȚII GENERALE:
An construcție: 2021
Construită în regie proprie
Regim de înălțime: P+M+Pod
Suprafață utilă: 145 mp + balcon 4,70 mp
Teren: 789 mp, cu tot cu cale de acces
DETALII CONSTRUCȚIE:
Fundație din beton armat
Centuri și stâlpi din fier beton
Zidărie din cărămidă
Izolație exterioară cu polistiren expandat
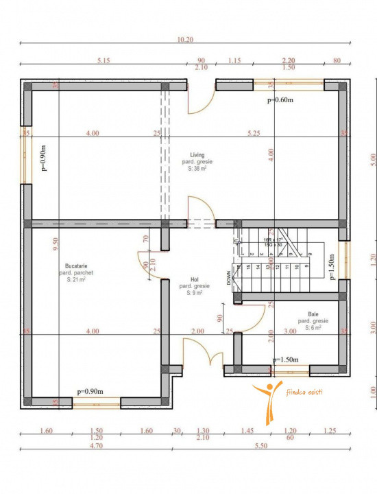
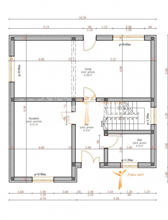
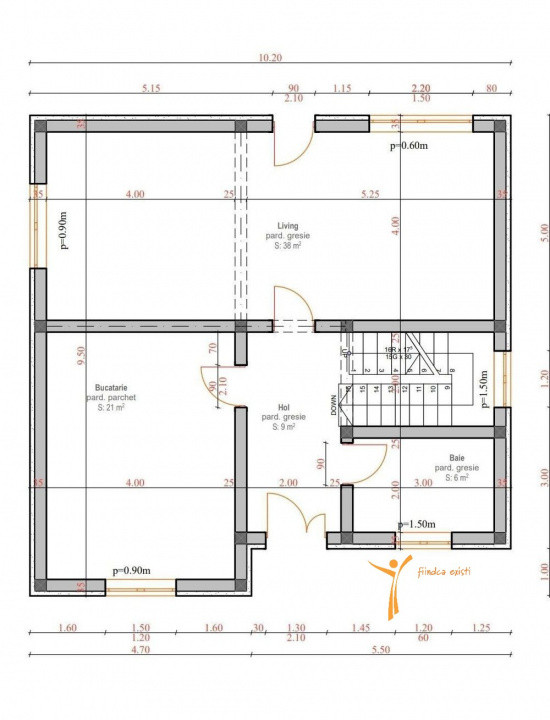
COMPARTIMENTARE:
~ PARTER: living generos, bucătărie, baie cu geam, hol
~ ETAJ: 3 dormitoare, baie cu geam, hol, balcon
~ POD pentru depozitare
🔹 Proprietatea se vinde LA GRI, oferind viitorului proprietar libertatea de a o amenaja și finisa exact după propriul gust și buget.
✔ Poziționată în planul 2 față de strada principală
✔ Cale de acces privată
✔ Zonă liniștită, aer curat și priveliște frumoasă
📍 La doar 2,5 km de Primăria Bârnova
Ideală pentru o familie care își dorește liniște, spațiu generos și acces rapid către oraș.
> Pentru vizionări sau informații suplimentare:
-> 0750.299.322 - Atasiei Mihaela
*Cod ofertă : P4780
🏡 Această proprietate poate fi achiziționată prin intermediul unui credit, iar noi suntem aici să vă facilităm acest proces. Datorită parteneriatelor noastre strânse cu cele mai importante instituții bancare, vă putem oferi asistență în obținerea finanțării potrivite pentru dumneavoastră.
✨Nu ezitați să ne contactați pentru mai multe informații despre opțiunile de finanțare disponibile! ✨