















*** DESTINE IMOBILIARE vă prezintă spre vânzare:
** Apartament 2 camere - NICOLINA 2
* PREȚ: 87.000 euro usor negociabil.
Detalii și informații utile:
~ Mansardă construită in anul 2007
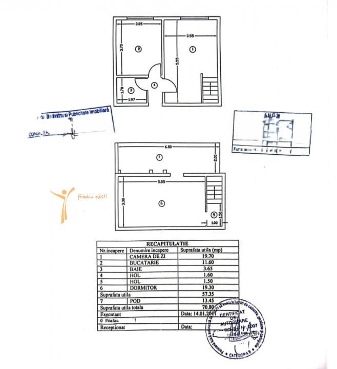
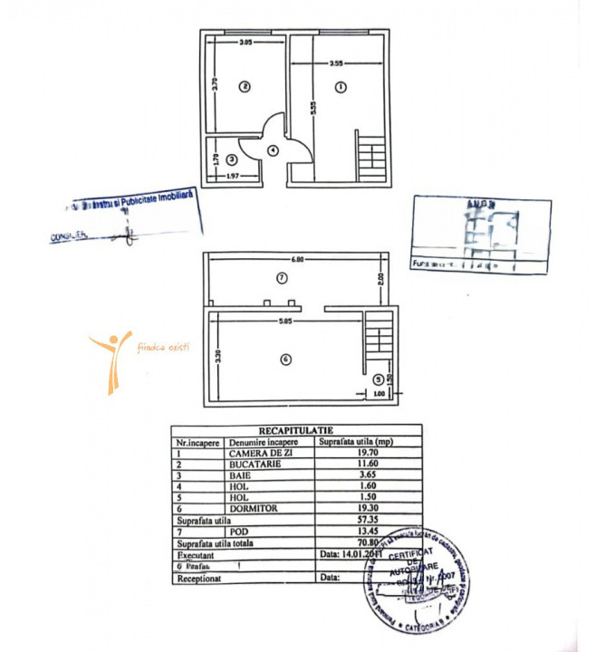
~ Suprafața utilă totală este de 70.80 mp
~ Este amplasată la etajul 5 din 5 cu scară interioară
Locuința este MOBILATĂ și UTILATĂ în totalitate și beneficiază de:
- CENTRALĂ TERMICĂ proprie
- tâmplărie din PVC cu geam termopan
- spatiu de depozitare generos (13,45)
- scară interioară pe structura metalica și lemn masiv
- Ferestre tip VELUX
- AER CONDIȚIONAT
- Recent renovata cu materiale de calitate, totul nou
* Imobilul este situat excelent in cartier iar in proximitatea blocului se regăsesc toate punctele de interes din zonă.
** Beneficiază de scară curată foarte bine intreținută.
*** La 100m de bloc se află stațiile pentru transportul în comun, multiple magazine si spații comerciale.
***Imobilul este situat excelent, în proximitatea lui fiind toate punctele de interes din zonă. Este o oportunitate ideală pentru invesțitie cu potențial ridicat pentru închiriere.
Pentru vizionări sau informații suplimentare:
0750.299.322 – Mihaela Atasiei
Cod ofertă: P4166
Această proprietate poate fi achiziționată prin intermediul unui credit, iar noi suntem aici să vă facilităm acest proces. Datorită parteneriatelor noastre strânse cu cele mai importante instituții bancare, vă putem oferi asistență în obținerea finanțării potrivite pentru dumneavoastră. Nu ezitați să ne contactați pentru mai multe informații despre opțiunile de finanțare disponibile!