
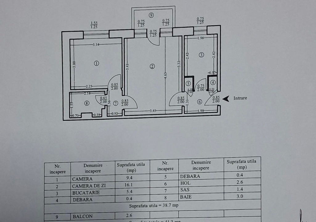
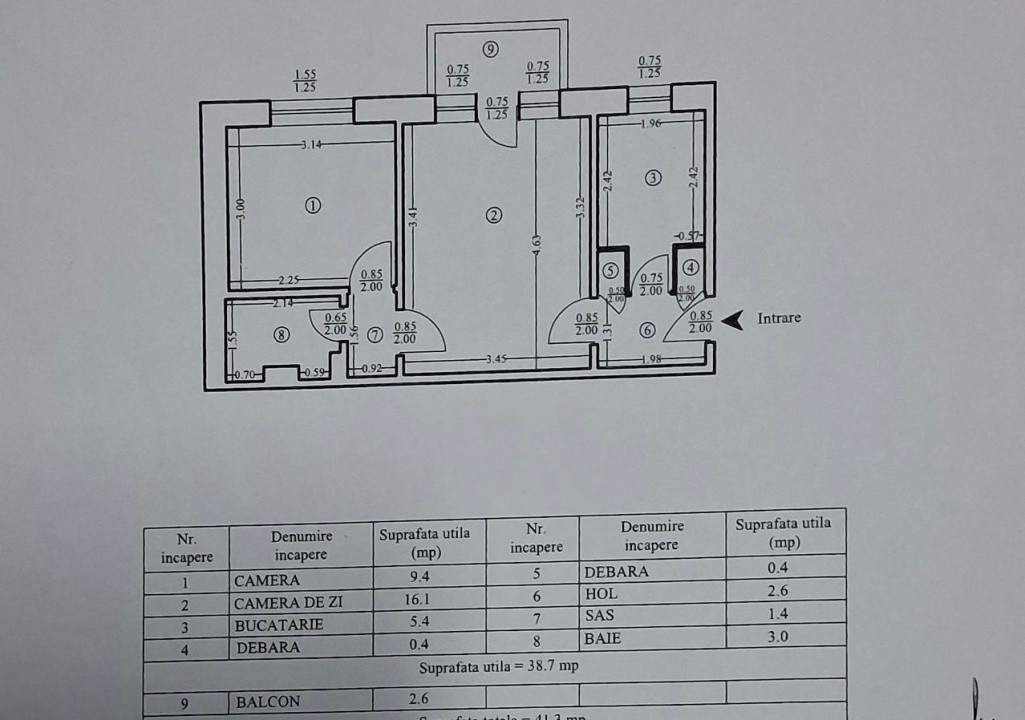
DESTINE IMOBILIARE va propune spre vânzare un apartament cu 2 camere situat în zona Mircea cel Bătrân, cu acces facil la transport, magazine, școli și alte puncte de interes.
Locuința necesită renovare, oferind posibilitatea de a fi personalizată exact după preferințele viitorului proprietar.
Caracteristici:
- 2 camere, SEMIDECOMANDAT
- Suprafata totala 41,2 mp
- An construcție bloc: 1974
- Pozitionat pe mijloc
- Etaj 1, perfect pentru familii sau investiții
- Pret: 74.900€
O opțiune excelentă pentru cei care caută un spațiu cu potențial într-una dintre cele mai accesibile zone ale Iașului.
Pentru mai multe detalii sau programarea unei vizionări: 0757.910.832 Ilie Loghin
COD OFERTĂ: P - 4606
❗️❗️❗️IMPORTANT❗️❗️❗️ 🎯Această proprietate poate fi achiziționată și prin intermediul unui CREDIT, iar noi suntem aici să vă facilităm acest proces. ✅Datorită parteneriatelor noastre strânse cu cele mai importante instituții bancare, vă putem oferi asistență GRATUITA în obținerea finanțării potrivite pentru dumneavoastră: CREDIT IPOTECAR, PRIMA CASĂ sau de NEVOI PERSONALE. ℹ️Pentru informații suplimentare, nu ezitați să ne contactați !