













Vă propunem spre vânzare o CASA INDIVIDUALA plan PARTER, situată în Valea Adâncă, ideală pentru o familie care își dorește confort și liniște, aproape de oraș.
*** Detalii locuință:
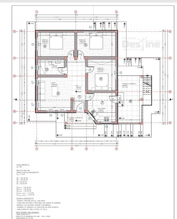
-Suprafață utilă: 101 mp
-Compartimentare: 4 camere, baie cu geam, bucătărie, terasă
-Teren : 450 mp
-An finalizare: 2025
*** Utilități și dotări:
-Curent electric, apă, gaz, fosă septică
-Centrală proprie
-Încălzire în pardoseală
-Terasă generoasă
-Izolație exterioară
-Gresie, faianță, parchet
Preț: 160.000 €
Nu se plateste TVA!!!
Această locuință reprezintă alegerea ideală pentru cei care caută o casă modernă, complet utilată, într-o zonă liniștită, dar cu acces rapid către oraș.
Suna acum pentru detalii și vizionări: 0757.910.832 Ilie Loghin
Cod ofertă: P- 3885
❗️❗️❗️IMPORTANT❗️❗️❗️ 🎯Această proprietate poate fi achiziționată și prin intermediul unui CREDIT, iar noi suntem aici să vă facilităm acest proces. ✅Datorită parteneriatelor noastre strânse cu cele mai importante instituții bancare, vă putem oferi asistență în obținerea finanțării potrivite pentru dumneavoastră: CREDIT IPOTECAR, PRIMA CASĂ sau de NEVOI PERSONALE. 🚫ZERO COSTURI SUPLIMENTARE ! ZERO COMISIOANE !🚫 ℹ️Pentru informații suplimentare, nu ezitați să ne contactați !