























Destine Imobiliare va prezinta spre vanzare o CASĂ INDIVIDUALĂ situata in Miroslava, cu regim de inaltim P+1 , realizata la standarde moderne de eficienta energetica.
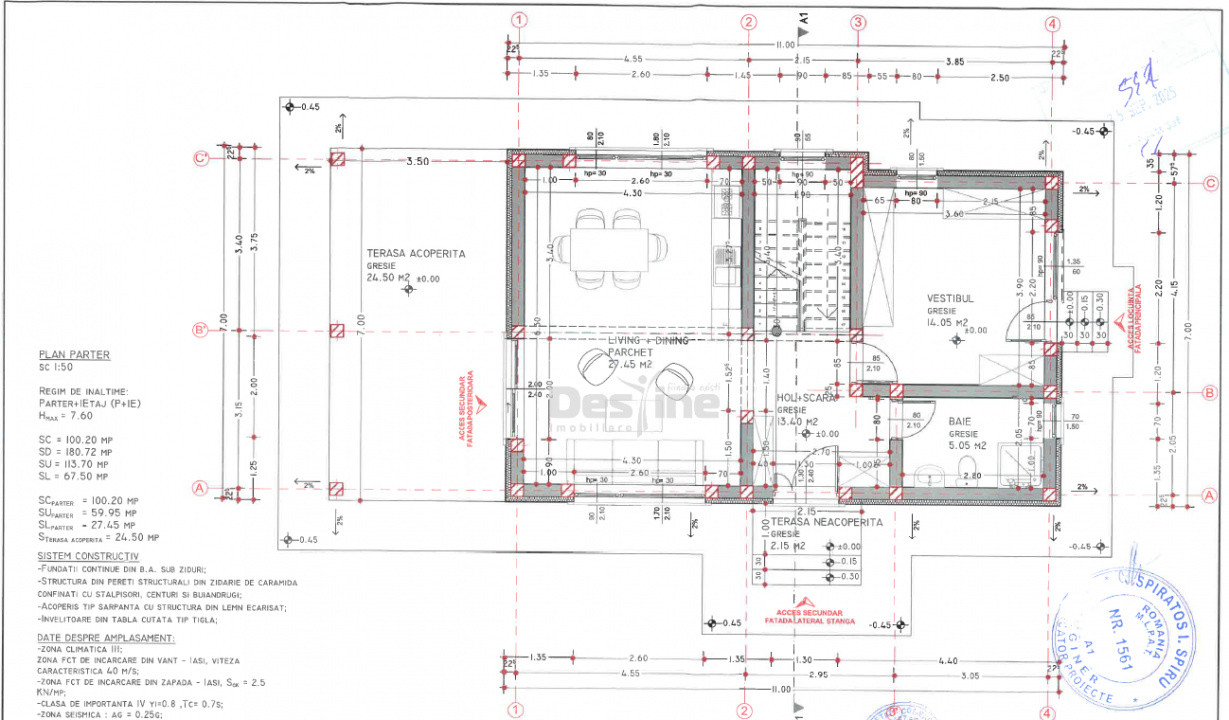
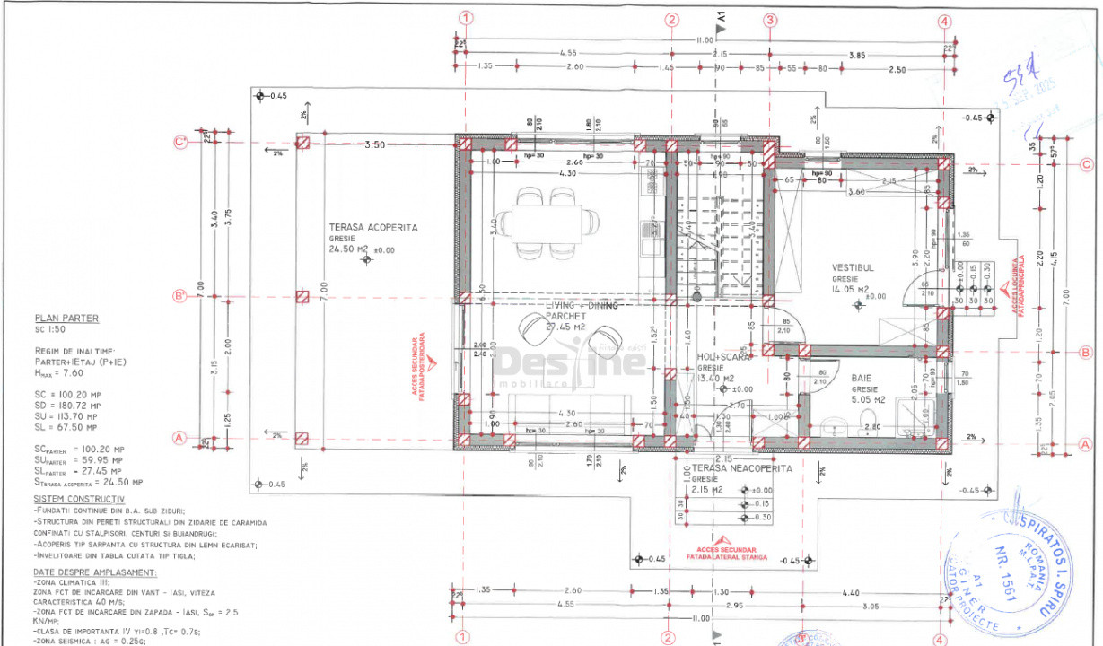
PARTER inaltime 2.90 m
-Hol de intrare
-Living 28 mp
-Bucatarie inchisa 12 mp
-Baie cu duș
-Terasa acoperita 32 mp
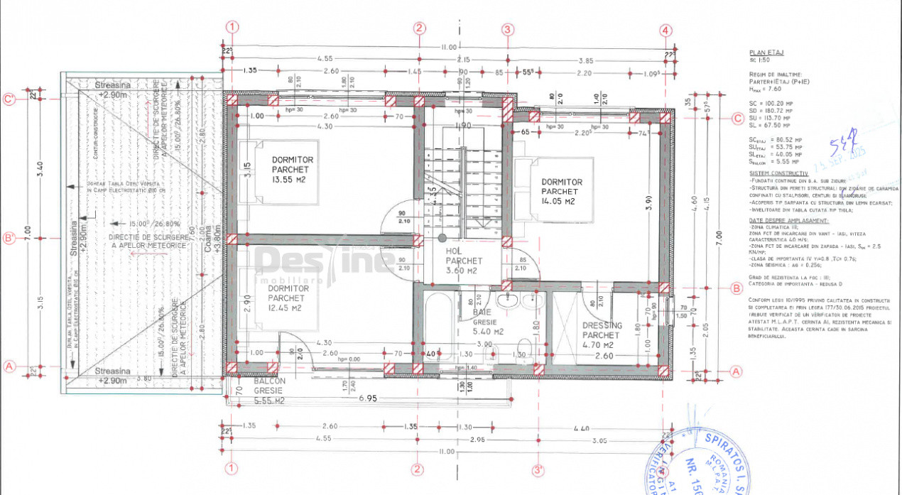
ETAJ inaltime 2.85 m
-Hol cu acces in pod
-dormitor 1: 16 mp cu dresing 4mp
-dormitor 2 :13 mp
-dormitor 3 :14 mp
-Baie cu cada , vas WC Villeroy & Boch ( dus igienic,colac incalzit,functie ventilare, dezinfectare) , lavoar
-Balcon
Este situata intr-o zona linistita de case la strada Principala.
Imobilul se preda la cheie avand poze din toate fazele constructiei
Caracteristici si beneficii:
- Suprafata totala: 164,2 mp
- Suprafata utila 120 mp
- Teren aferent: 394 mp
- Regim de inaltime: P + 1
- 4 camere
- 2 bai cu geam
- Incalzire in pardoseala
- Pompa de caldura
- Panouri FOTOVOLTAICE
- Centrala pe sistem verde
- Toate utilitatile disponibile, situata la strada asfaltata
- Izolație vata minerala de 15 cm + vata minerala pe POD
- Fundatie izolata si hidroizolata
- Clasa energetica A
- Constructie noua
Disponibilitate:
2 unitati disponibile
Finalizare: iunie 2026
Pret: 269.900 euro (TVA inclus)
COMISION O% !!
Imobilul este ideal pentru o familie care cauta confort modern, costuri reduse si un standard ridicat de locui…
❗️❗️❗️IMPORTANT❗️❗️❗️ 🎯Această proprietate poate fi achiziționată și prin intermediul unui CREDIT, iar noi suntem aici să vă facilităm acest proces. ✅Datorită parteneriatelor noastre strânse cu cele mai importante instituții bancare, vă putem oferi asistență în obținerea finanțării potrivite pentru dumneavoastră: CREDIT IPOTECAR, PRIMA CASĂ sau de NEVOI PERSONALE. 🚫ZERO COSTURI SUPLIMENTARE ! ZERO COMISIOANE !🚫 ℹ️Pentru informații suplimentare, nu ezitați să ne contactați !