







Te invităm să descoperi acest apartament deosebit, situat in zona Victoriei-Calea Victoriei, la doar 3 minute de mers pe jos de stația de metrou Piața Victoriei. Această proprietate reprezintă o oportunitate unică, combinând confortul cu o locație premium.
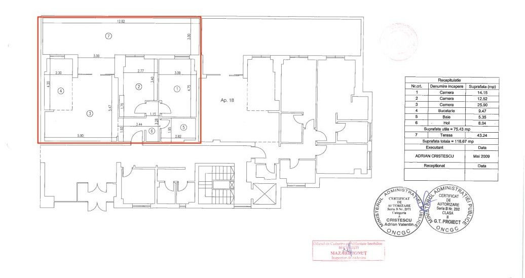
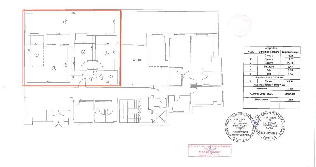
Cu o suprafață totala 119 mp, din care suprafata utilă de 76 mp si o terasă superbă de 43 mp, înconjurată de vegetație, oferind un spațiu ideal pentru relaxare și petrecerea timpului în aer liber. Toate camerele au acces direct la terasă, creând o conexiune perfectă între interior și exterior.
Situat la parterul unui bloc construit în 2009, apartamentul asigură acces facil și confort sporit. De asemenea, beneficiază de un adăpost ALA la subsol, oferind un plus de siguranță și liniște. Incalzirea se face prin centrala de bloc.
Această proprietate este perfectă pentru cupluri, familii sau ca birou de reprezentanță. Vei putea să te bucuri de liniște și verdeață, în timp ce pulsul orașului se află la doar câțiva pași distanță.
În plus, apartamentul dispune de două boxe pentru depozitare, ideale pentru păstrarea ordonată a lucrurilor, precum și două locuri de parcare subterane, pentru a-ți asigura confortul și accesibilitatea, care se pot achiziona separat.
Nu rata ocazia de a viziona acest apartament excepțional! Contactează-ne pentru mai multe detalii sau pentru a programa o vizionare.